arWADAビル

物件名
arWADAビル

所在地
神奈川県横浜市保土ケ谷区和田1丁目

交通
相鉄本線和田町駅北口から徒歩約3分
JR横浜駅からバス約20分
バスの場合「横浜駅西口」乗車→「和田町」下車徒歩3分ほど

物件種別
店舗

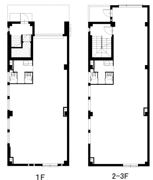
建物構造
店舗/鉄骨

階建
3階

築年月
2022年4月(築3年)

特徴
トイレ・流し台・前面駐車場

空き室
なし